网站图标 精彩的工程

在世界上最昂贵的单卧室公寓内

一间客房公寓7

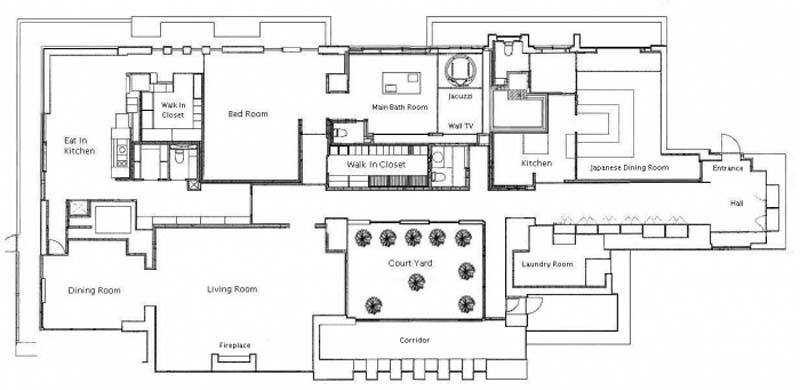
谁不想住在一个豪华的房子里,但它通常太昂贵,而是富有宗旨,这就是为什么人们选择的公寓,这有点经济,并且仍然能够满足他们的需求。然而,这间卧室公寓不是那些钱包薄的公寓。你准备好听到这间公寓上的价格标签是什么吗?这座房子,这座婴儿床为精英阶层的面积为4,434平方英尺,价格为18亿日元。仍然不清楚价格如何?将18亿日元转换成美元,您正在寻找2180万美元的数字。是的,我们知道,太血腥了!距离宫殿的宫殿(Minami-Azabu)位于东京日本公寓。

所有家具都是由Cecotti Collezioni定制的,大多数墙壁,门和地板由意大利进口的石头和木材制成。餐厅是日本风格的“Ryotei”,允许厨师直接从美食厨房服务。下一站式是露台,巴黎风格,允许阿里斯加瓦公园的视野。日本艺术家Hiroshi Senju的原位绘画在家中举行。配有一个庭院花园,没有皇家花园。它有一个完整的浴室,而两个浴室是部分的。所有厨房用具都是由Cornue提供的。

虽然设计和装饰非常酷,但在一天结束时,这只是一个房间的公寓,这是太高的价格。如果你有钱,你会得到一个吗?在下面的评论部分告诉我们您的意见!